

Alltrade Scaffolding delivered a Stage 2 scaffold system at 294 Williams Road, Toorak, providing safe roofing and cladding access with full AS/NZS compliance.

Alltrade Scaffolding delivered a multi-level scaffold system at 67 Mayston Street, Hawthorn East, ensuring safe roofing and façade access with full AS/NZS compliance.

Alltrade Scaffolding delivered a multi-level K-Stage scaffold system at 88 Junction Road, Blackburn North. Discover how we ensured safe, compliant access up to 10m.

Learn how Alltrade Scaffolding delivered a safe and custom scaffold solution for a multi-level façade project in Kew using K-Stage platforms.

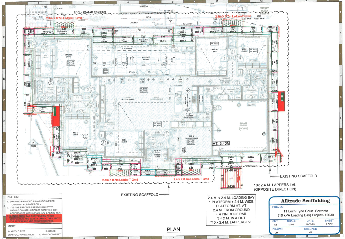
Alltrade Scaffolding delivered a 10 kPa scaffold loading bay at 11 Loch Fyne Court, Sorrento. Learn how we achieved AS/NZS compliance for heavy-duty access

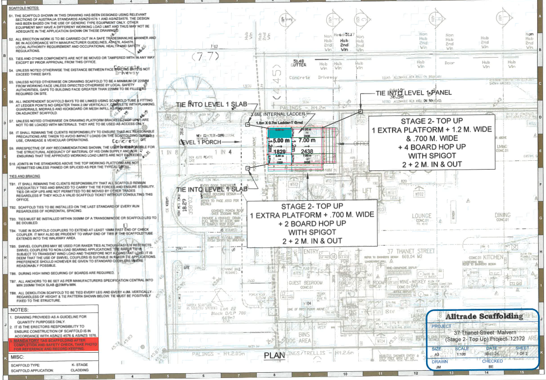
Discover how Alltrade Scaffolding delivered a compliant scaffold top-up for cladding access at 37 Thanet Street, Malvern. View full project scope, solution, and results.

See how Alltrade Scaffolding delivered a safe, compliant scaffold solution for gutter replacement at 800 Princes Hwy Springvale on time and to spec.

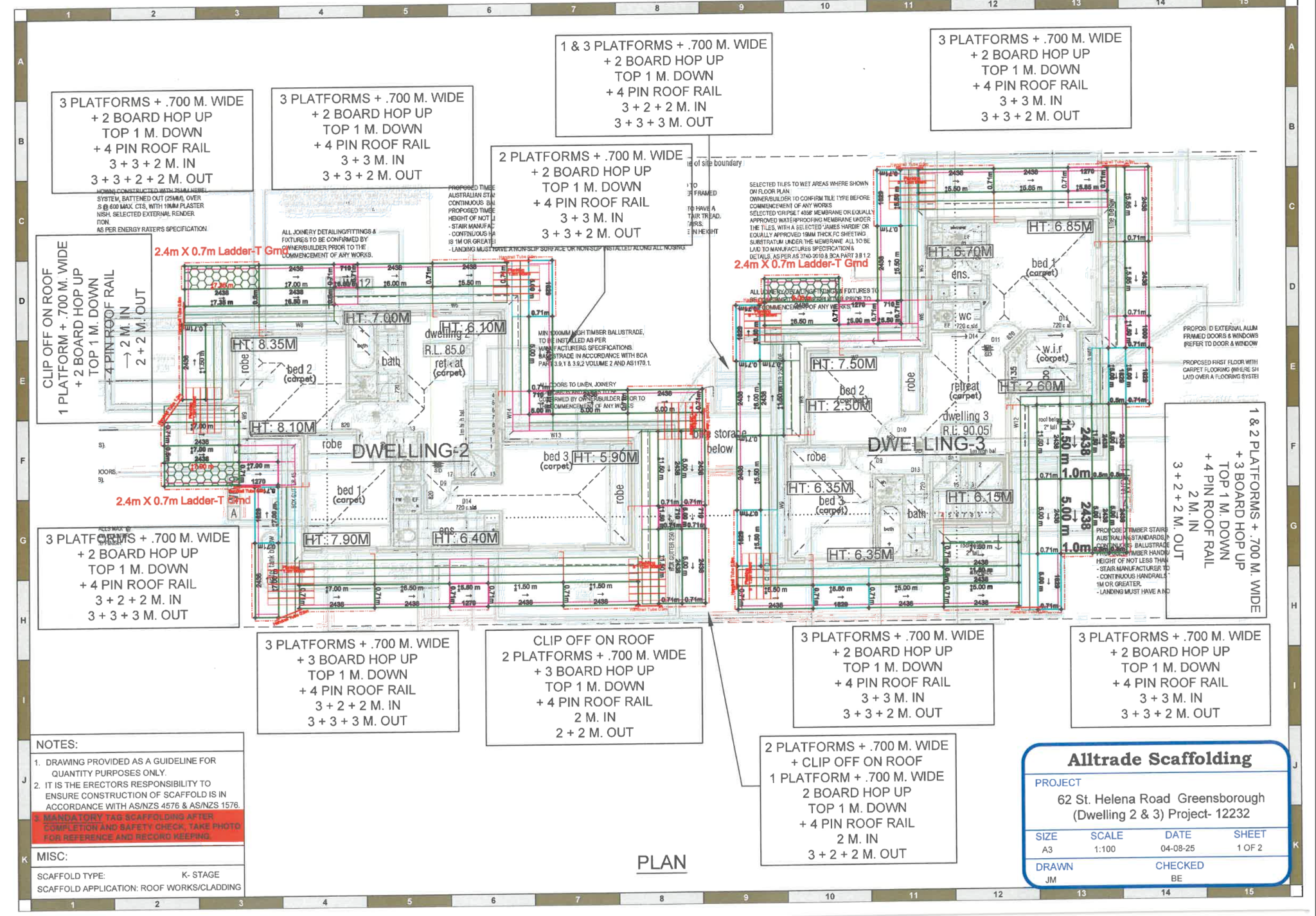
See how Alltrade Scaffolding delivered a safe, compliant, and efficient access solution for roof and cladding works at 62 St. Helena Road Greensborough.

Discover how Alltrade Scaffolding delivered a safe, compliant, and efficient scaffolding solution at Melbourne Girls Grammar School with zero disruptions.

Discover the top 5 scaffolding innovations of 2025, featuring cutting-edge materials that enhance safety, durability, and efficiency in construction.

Alltrade Scaffolding use CAD software to design complex scaffold structures for your next project.

Alltrade Scaffolding is committed to providing a safe and healthy workplace for all persons.

Alltrade Scaffolding meet the safety Worksafe requirements for Victoria.
$20 million public liability scaffolding insurance
Quality workmanship
Get a quote in 48-hours